WB BG/BRG Perchtoldsdorf - Erweiterung

Perchtoldsdorf, NÖ

Beschreibung

Gemeinsam mit freistil. nahmen wir am Wettbewerb für die Erweiterung des BG/BRG Perchtoldsdorf teil. 

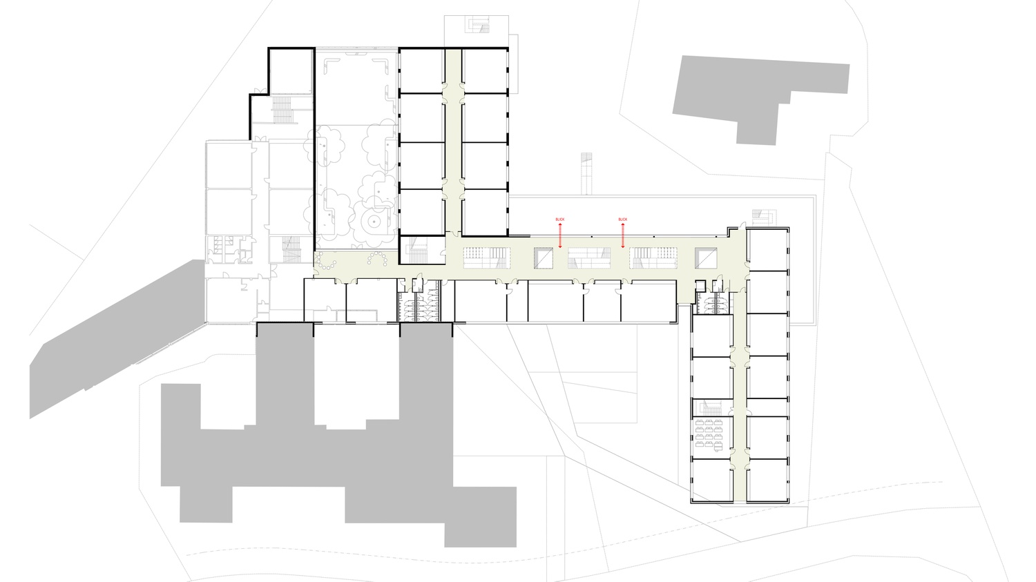
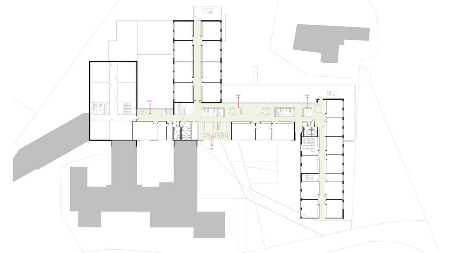
Der Bestand wird um einen kompakten Riegel ergänzt. Die Hanglage des Grundstücks wird aufgenommen, so dass das ehemalige Untergeschoß nun als ausgedehnte Erdgeschoßzone hervortritt. Eine schlanke zentrale Halle bildet das Bindeglied zwischen alt und neu.
Es entsteht für das BRG nach Abtretung des Westflügels an die VS ein symmetrisches Ensemble aus 2 Klassentrakten, die um ein neues Zentrum – das alle Sonderräume und Pausenflächen aufnimmt – gruppiert sind.
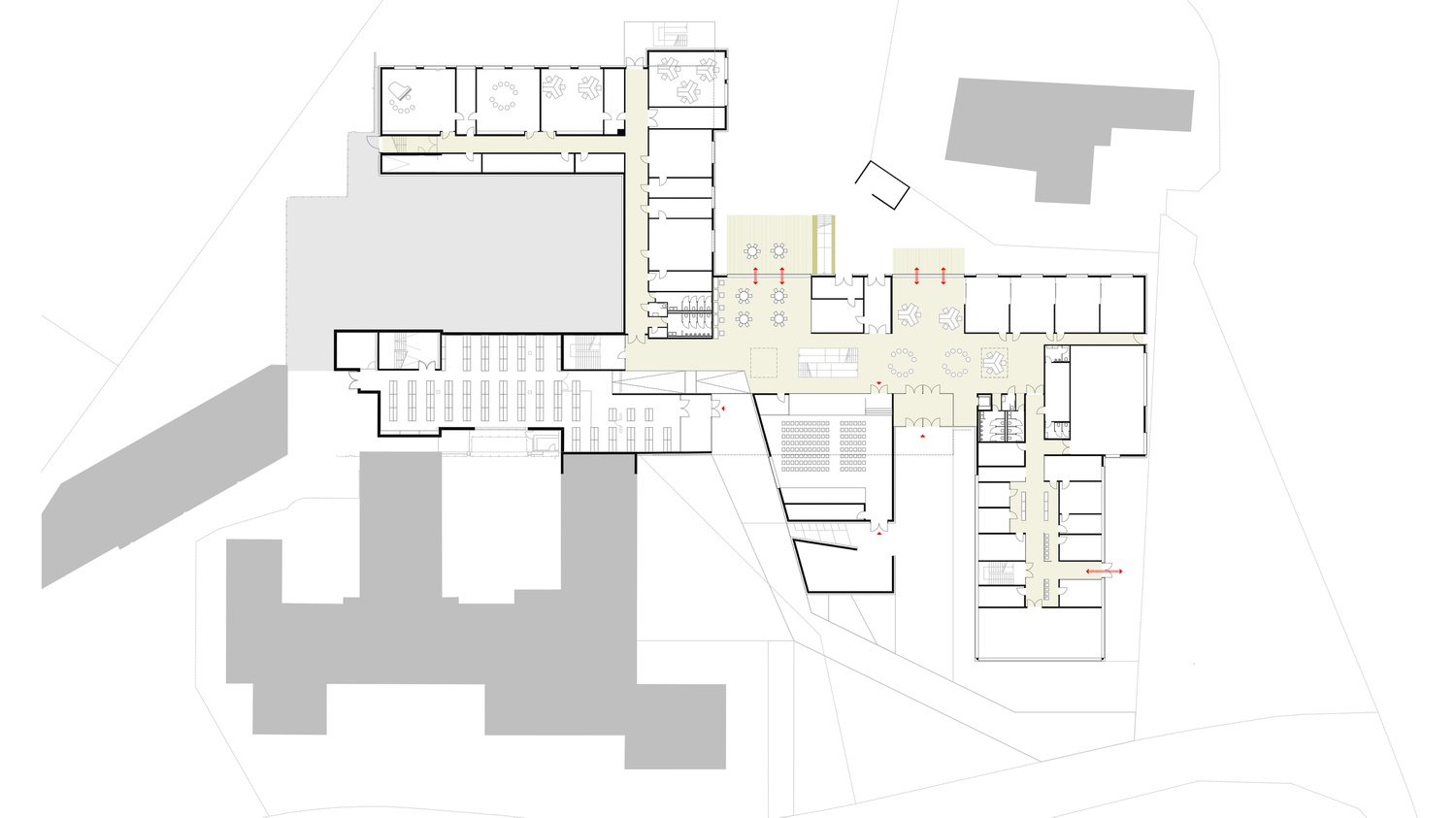
Der Neubau nimmt die Niveaus des Bestandsgebäudes auf – durch das Einstellen des Mehrzwecksaals in den Hof, wird die Zugangssituation von Schülern und Lehrern entflochten und der Niveauunterschied zwischen Zentralgarderobe und Foyer sanft abgefangen.
Alle Eingänge sind direkt barrierefrei erreichbar, die Obergeschoße erschließt ein Lift, der vom Foyer aus alle Ebenen anfährt. Die Grundsätze des barrierefreien Bauens wurden sowohl im Inneren des Gebäudes als auch in der Freiraumgestaltung angewandt. Auf Übersichtlichkeit und kurze Wege wurde Wert gelegt.

Details

Kategorien: Wettbewerb

offener Wettbewerb