KIGA Krems

Krems, NÖ

Beschreibung

Gemeinsam mit Arch. DI Martin Wagensonner - Yes We Plan! haben wir den geladenen Realisierungswettbewerb Neubau Kindergarten Krems Mitterau 3 gewonnen!

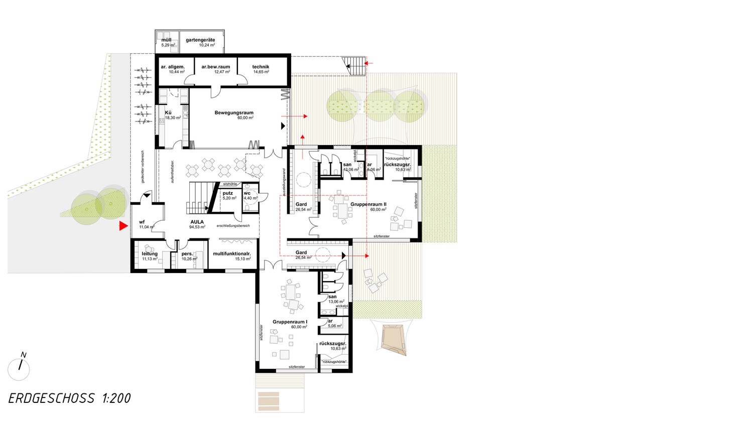
Der Neubau wird durch die gewählte Geometrie mit dem Außenraum vernetzt und schafft so verschiedene Aufenthaltsqualitäten. Im Jahres- und Tageszeitenverlauf können diese Bereiche unterschiedlich genutzt werden. Durch die Gebäudegeometrie entstehen natürlich beschattete und sonnige Bereiche die aufgesucht werden können. Dabei sind die Gruppenräume in den Garten orientiert und an zwei Seiten natürlich belichtet. 
Der modulare Aufbau ermöglicht eine spätere Erweiterung im Obergeschoss. Für Veranstaltungen lässt sich die Aula um den Bewegungsraum erweitern. Die zentrale Treppe dient auch als Sitztribüne. Der Neubau soll in vorgefertigter Holzmassivbauweise errichtet werden.

Details

Kategorien: Fertiggestellt

geladener Wettbewerb
1. Platz

Baubeginn 2020